Benvenuto sul sito del Tribunale di Cagliari

Tribunale di Cagliari - Ministero della Giustizia

Tribunale di  Cagliari
Ti trovi in:

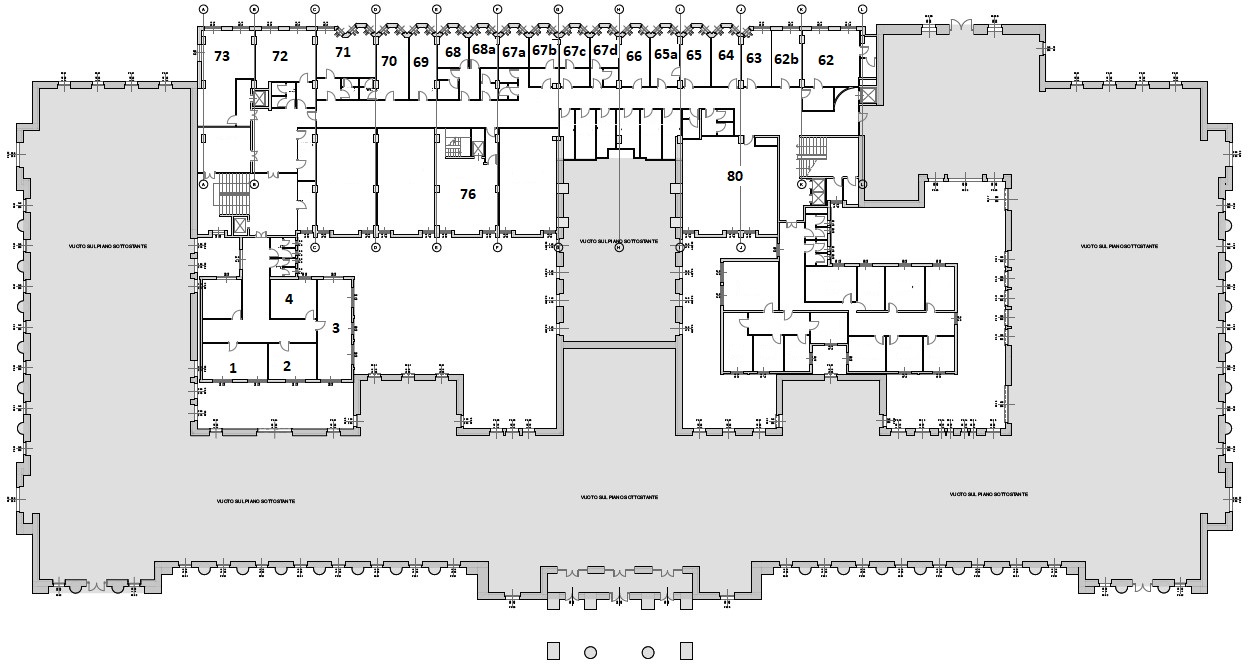
Piano Primo - Ala Nuova

Primo piano - ala nuova_def.jpg
Ufficio Ubicazione Piano Stanza
AREA PENALE Piazza della Repubblica, 18 PRIMO - ALA NUOVA 73, 72, 71, 70, 69, 68, 68a, 66, 65a, 65, 64, 63, 62b, 62, 80
UFFICIO RECUPERO CREDITI Piazza della Repubblica, 18 PRIMO - ALA NUOVA 76, 67a, 67b, 67c, 67 d
UFFICIO SPESE DI GIUSTIZIA - PENALE Piazza della Repubblica, 18 PRIMO - ALA NUOVA 1, 2, 3
Torna a inizio pagina Collapse